
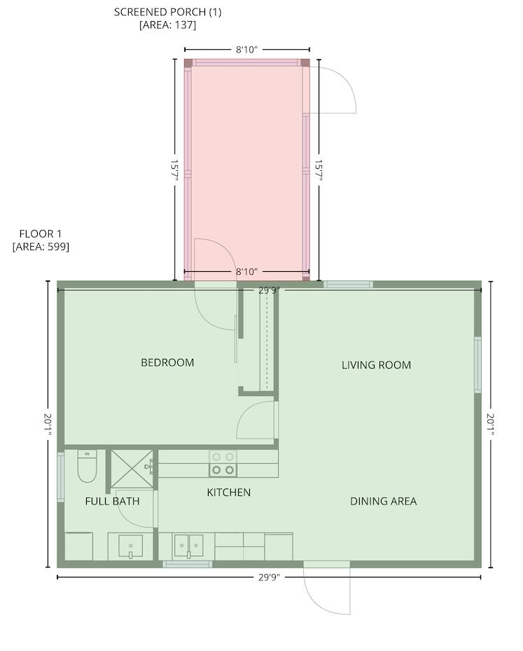
New ListingOnce-in-a-lifetime property in the Rogersville School District! Situated on 5 beautiful acres, this remarkable property offers not one but two homes and a lifestyle that blends hobbies, comfort, functionality, and charm. The main home features 4 bedrooms, 2.5 baths, and an oversized 2-car garage. Step inside to updated LVP flooring, brand new HVAC in 2025 and a welcoming entry, and a spacious open-concept layout. The living room flows seamlessly into the dining area and a bright kitchen with double wall ovens, a cooktop island, and a large walk-in pantry. The split-bedroom design provides privacy with 2 bedrooms and a shared bath on one side, a generous primary suite with a soaking tub and walk-in closet and on the other side a 4th bedroom with a half bath perfect for guests or an office. Step outside to a sprawling deck with two pergolas and an above-ground pool for relaxing or entertaining. Step over to the Guest House featuring an open living and dining area with a tin ceiling, galley kitchen, bath with laundry, and a large bedroom that opens to a screened-in porch. A stone path and front porch add to its inviting character, making it ideal for extended family or guests. Outside, you'll find a 24×50 workshop/outbuilding, storage shed, two chicken coops, a loafing shed and even a friendly old Mustang horse who might stay if you ask nicely... chickens too! Multiple types fruit trees out front. This property offers the perfect blend of peaceful country living with easy access to Rogersville and Springfield amenities. Truly a must-see property rarely does a home like this come along in 417 Land! *Some photos have been virtually staged; as noted.
| MLS # | 60309091 |
|---|---|
| Listing Type | For Sale |
| Style | House |
| Sub-Type | Resale |
| Status | Active |
| Year | 2003 |
| Days On Site | 5 |
| Listing Provided By | EXP Realty LLC | Dana R. Ingle |
| Bed(s) | 5 |
|---|---|
| Bath(s) | 4 Total |
| SQ Feet | 3,042 |
| Basement | Y |
| Pool | Yes |
| Acreage | 5.00 |
| Property View | Panoramic |
| Rooms Total | 0 |
|---|---|
| Cooling Yes / No | Yes |
| Cooling | Central, Ceiling Fans |
| Heating Yes / No | Yes |
| Heating | Fireplace, Forced Air |
| Interior Features | Laminate Counters, Walk-In Closet(s), In-Law Floorplan, W/D Hookup, Walk-In Shower |
| Window Features | Blinds, Double Pane Windows |
| Appliances | Wall Oven - Double Electric, Cooktop-Electric, Microwave, Dishwasher |
| Exterior Features | Drought Resist Ldscp, Rain Gutters |
|---|---|
| Construction Materials | Vinyl Siding |
| Lot Features | Pasture, Landscaping, Cleared, Acreage, Horses Allowed, Paved Frontage |
| Garage Yes / No | Yes |
|---|---|
| Parking Features | Private, Gravel, Garage Faces Front, Driveway, Additional Parking |
| Property | 2888 |
|---|
| State | MO |
|---|---|
| County | Christian |
| City | Rogersville |
| Zip Code | 65742 |
| Community Name | Christian Not in List |
| School District | Rogersville |
| Elementary School | Rogersville |
| High School | Rogersville |
| State | MO |
|---|---|
| County | Christian |
| City | Rogersville |
| Zip Code | 65742 |
| Community Name | Christian Not in List |
| School District | Rogersville |
| Elementary School | Rogersville |
| High School | Rogersville |